Home
About Us
Project
Contact
عربي
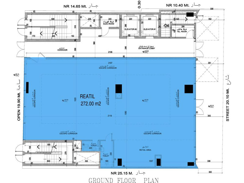
SULAIMAN TOWER
Al-Sharq – Survey Block 5 – Parcel no. 25
PLOT AREA 501.50 m2